印度客戶定制的400GPM泥漿處理系統出廠發貨
2014年12月15日 | 類目: 公司新聞
正道能源所生產的固控設備及固控系統廣泛運用于石油天然氣鉆井、煤層氣鉆井、水平定向穿越、非開挖、盾構、河道清淤、環保等領域。此次研發生產的400 GPM水平定向穿越泥漿固控系統將發往印度用于水平定向穿越打井現場。
根據我們客戶的需求定制,以下圖紙設計由Brightway制成。

400 GPM水平定向穿越泥漿固控系統

2d-BWZS85-2p振動篩圖紙

Brightway設計的3D圖

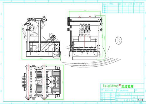
BWZJ85-1S8N泥漿清潔器的設計圖紙
此次400 GPM水平定向穿越泥漿固控系統根據客戶的實際需求進行設計定制。主要包括BWZS85-2P鉆井液振動篩,BWZJ85-1S8N鉆井液清潔器,射流混漿裝置,鉆井液攪拌器及砂泵等配套設備。

技術人員對BWZS85-2P鉆井液振動篩進行測試

BWZJ85-1S8N鉆井液清潔器
正道能源生產的泥漿固控系統設備上電器元件可以選配,西門子,施耐德,ABB等國際品牌、除砂除泥旋流器采用高耐磨復合聚氨酯材質、采用美國馬丁,italvibras,Oli等品牌激振電機、選用海洋防腐油漆··

測試完畢后對系統所配設備吊裝發貨
Tags: 泥漿回收系統
